Description >>
Tasman East | Santa Clara
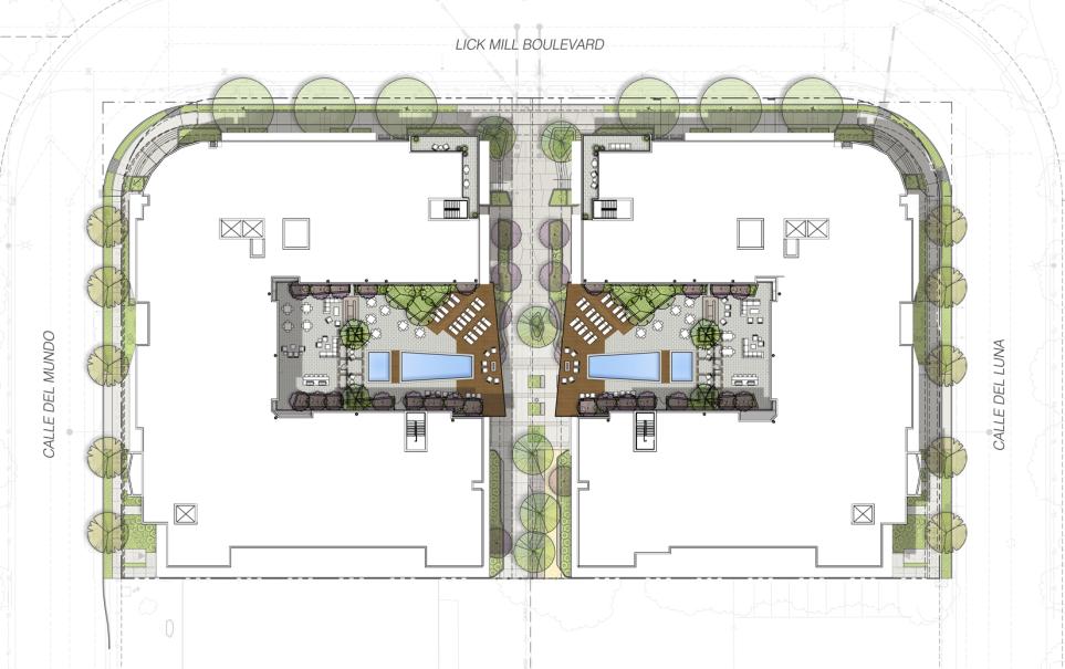
Located in the newly created Central District of the Tasman East Specific Plan area in Santa Clara, California, “The Greenway” will consist of two high-density, mid-rise residential buildings totaling 388 residential units. The sites front the newly created Tasman East Greenway at Lick Mill Road. This specific plan area features 17,000 sf of public open space, 10% BMR units, and active uses along the pedestrian frontage. The project incorporates robust resident amenities at the ground, podium and the rooftop overlooks the greenway and neighboring park. The building frontages along the greenway reinforce a perspective enhancement. The project promotes a healthy, resilient community through the reduction of on-site resource usage, use of drought-tolerant landscape, stormwater retention, shaded open spaces, on-site Electric Vehicle Charger Stations, shared vehicle allowance, and other green building strategies.
Project / Address
Tasman East
Santa Clara, CA
