Description >>
Shell Building Renovation
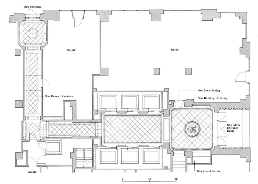
Since the Shell Building is one of San Francisco’s most noted landmark buildings, it was important to take extreme care in creating a restoration plan that would maintain all original and significant details. Designed by George Kelham in 1929, the 28-story, 223,000-square-foot office tower renovation encompassed extensive reconstruction of all ground and upper floor public areas. In addition to updating all major building systems, renovation work included the design of a second building entrance and the creation of an elaborate plaster dome that sits just below the third floor in the main lobby, effectually doubling the interior’s volume. Dramatic exterior lighting was also installed to illuminate the upper tower and entrance vault.
Project / Address
Shell Building Renovation
San Francisco, CA

 
   
   
   
   
   
   
   
   
   
  